



Phú Quý - mảnh ghép trọn vẹn trong bức tranh thịnh vượng Vlasta - Thuỷ Nguyên.
Nơi mạch sống đô thị giao hoà cùng địa khí phong thuỷ hiếm có, mở ra điểm khởi đầu cho một chu kỳ phồn vinh mới.
Lưng tựa Sơn Đào hùng vĩ, mặt hướng đại lộ huyết mạch 359C, Phú Quý vừa đủ gần để bắt nhịp vận hội, vừa đủ thoáng đạt để giữ trọn cân bằng, như khoảng lặng tinh tế trong một bản giao hưởng đô thị.

Không phô trương diện tích, nhưng khéo léo tối ưu từng giá trị.
Không cần tài chính lớn, nhưng vẫn sở hữu vị trí trung tâm, quy hoạch đồng bộ, pháp lý minh bạch.
Không đứng ngoài dòng phát triển, mà hiện diện ngay nơi khởi sinh vận hội của cùng lõi đô thị mới


Toạ lạc ngay trung tâm Núi Đèo - trái tim đang chuyển mình của Thuỷ Nguyên, Vlasta - Thuỷ Nguyên hiện hữu như nét son rạng rỡ trên miền đất quý.
Nằm trên trục 359C huyết mạch, giao thoa cùng tỉnh lộ 359 và quốc lộ 10, dự án mở ra kết nối đa chiều với các trung tâm kinh tế, văn hoá, chính trị - khẳng định vị thế tâm điểm nhịp sống thời đại, kiến tạo giá trị an cư bền vững.

UBND Phường Thuỷ Nguyên
Sân vận động Thuỷ Nguyên
Khu công nghiệp VSIP Hải Phòng
Bệnh viện Đa khoa Thuỷ Nguyên
Bến xe Bắc Hải Phòng
Trung tâm Chính trị - Hành chính TP. Hải Phòng
Trung tâm Hội nghị - Biểu diễn TP. Hải Phòng
Nhà hát lớn TP. Hải Phòng
Cảng Hải Phòng
Sân chơi đa năng
Giàn hoa điểm nhấn
Vườn xích đu
Sân chơi trẻ em
Đường dạo cảnh quan
Vườn cảnh quan
Vườn cờ
Vườn BBQ
Bãi đỗ xe - Trạm sạc xe điện
Con đường Ánh sao
Phố đi bộ Ánh sao
Khu thương mại - dịch vụ
Trường học liên cấp
Trung tâm chăm sóc sức khoẻ
Trung tâm thể dục thể thao
Dòng căn đa năng Hybrid Home
<70m2
Dòng căn nhà vườn Signature Home
<90m2
Dòng căn thương phố Bazaar Home
<90m2

Thủy Nguyên đang trở thành tâm mạch mới của tam giác kinh tế Bắc Bộ, nơi hạ tầng liên tục khai mở, cư dân dịch chuyển không ngừng.
Chọn Phú Quý là chọn sống ngay tại trung tâm lõi đang bứt phá mạnh mẽ nhất.
Mỗi ngày không chỉ là một nhịp sống hiện đại, mà còn là một bước tiến giá trị – vừa tận hưởng chất sống thời đại, vừa nắm trọn dư địa tăng trưởng dài hạn.
Phú Quý hội tụ ba yếu tố vàng: liền kề trục hành chính mới, tọa lạc trên đại lộ thương mại nội khu và bao quanh bởi cộng đồng cư dân sầm uất. Đây chính là “trung tâm của trung tâm” – nơi nhịp sống đô thị đã rõ hình hài, hạ tầng đã hoàn thiện, quy hoạch đã định vị. Không cần chờ tương lai, giá trị đã sẵn sàng bứt phá ngay hôm nay.
Một sản phẩm, đa cách khai thác: an cư, kinh doanh, cho thuê, văn phòng hay dịch vụ. Thiết kế tối ưu, pháp lý minh bạch, cộng đồng cư dân thật và hạ tầng đồng bộ đảm bảo mỗi căn nhà tại Phú Quý đều mang lại hiệu suất sử dụng thật, dòng tiền thật và thanh khoản nhanh – trở thành tài sản “gọn mà tinh”, dễ nắm giữ và dễ gia tăng giá trị.
Phú Quý không chỉ mang đến một căn nhà, mà là một tổ ấm đủ đầy tiện nghi – nơi trường học, công viên, tuyến phố thương mại và cộng đồng cư dân năng động đều hiện hữu ngay bên thềm cửa. Với gia đình trẻ, đó là khởi đầu trọn vẹn: tài chính vừa vặn, tiện ích đủ đầy, để an tâm an cư và nuôi dưỡng những ước mơ tương lai. Với gia đình đa thế hệ, đó là khoảng sống mới: riêng tư, ấm cúng nhưng vẫn gắn kết, bền vững qua từng thế hệ.
Được phát triển bởi Văn Phú – thương hiệu kiên định triết lý “Bất động sản vị nhân sinh” – Phú Quý không chỉ là một phân khu, mà là lời cam kết: mỗi công trình đều dành trọn tâm huyết để kiến tạo một môi trường sống bền vững, cân bằng và giá trị theo năm tháng. Đó chính là bảo chứng an tâm để nhà đầu tư và cư dân cùng đặt niềm tin dài hạn.
Khi ta tìm một ngôi nhà, là tìm nơi để trở về
Nhưng khi chọn đúng không gian sống...
ta tìm thấy chính mình
Trên bức tranh Phú quý có ba sắc độ, ba phong cách, ba lựa chọn...
để bắt đầu một hành trình sống đầy cảm hứng.



Nơi nhịp sống hiện đại gặp gỡ không gian đa sắc.
Cân bằng hoàn hảo gữa vẹn tròn an cư và tối ưu sinh lời.
Kết hợp giữa phong cách sống hiện đại và giá trị khai thác đa chiều, Hybrid Home không chỉ là nơi để ở, mà còn là công cụ sinh lời tinh gọn cho nhà đầu tư thời mới. Mỗi căn nhà là một “tổ ấm đa năng” - có thể biến hóa thành không gian an cư, kinh doanh, văn phòng hay dịch vụ lưu trú.
Mặt tiền
5m
Chiều cao tầng 1
3.9m
Diện tích
62.5 - 67.5m2
Tổng diện tích sử dụng
250m2

Nơi thiên nhiên độc bản đánh thức mọi giác quan.
Nhà phố vườn riêng tư, chạm chuẩn sống tinh tuyển
Nhà phố vườn riêng tư với ban công ngập nắng, sân vườn rực sắc hoa, hai mặt thoáng đón gió và ánh sáng. Mặt trước là phố xá sầm uất, mặt sau liền kề phố đi bộ, Signature Home là nơi mỗi khoảnh khắc quây quần của gia đình được nâng niu, dấu ấn cá nhân hiện hữu trong từng không gian sống và mảng xanh riêng tư.
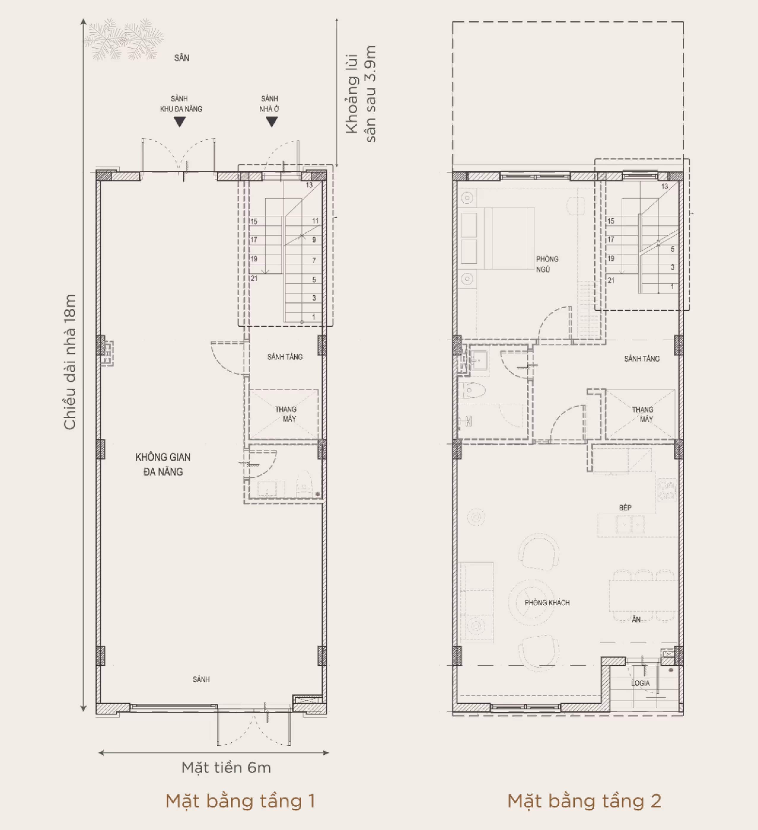
Mặt tiền
6m
Chiều cao tầng 1
3.9m
Khoảng lùi sân riêng
2m
Diện tích
81 - 84m2
Công viên sau nhà
1500m2
Tổng diện tích sử dụng
300m2

Nơi tâm điểm kết nối, dẫn nhịp giao thương thịnh vượng.
Thăng hoa cùng giá trị đầu tư bền vững và xứng tầm.
Là dòng sản phẩm thương mại đa năng, Bazaar Home tọa lạc ngay mặt tiền đại lộ nội khu – trục thương mại chiến lược, nơi dòng người và dòng tiền liên tục chuyển động. Sở hữu mặt tiền lớn, diện tích rộng, Bazaar Home là lựa chọn lý tưởng để kinh doanh, cho thuê hoặc vận hành nhiều mô hình dịch vụ, đồng thời gia tăng giá trị thương hiệu theo nhịp phát triển hạ tầng.
Mặt tiền
6 - 21m
Chiều cao tầng 1
3.9m
Khoảng lùi sân riêng
3.9m
Diện tích
93.25 - 136m2
Tổng diện tích sử dụng
~340 - 430m2


